Please take a peak at some kitchen design pictures and kitchen layouts of the new homes currently under construction on Rosario Way in Burlington, MA.
Rosario Way in Burlington, Massachusetts is a brand new 3 lot subdivision sitting on a new beautifully landscaped cul-de-sac. Quality craftsmanship will make this a gorgeous home offering 8 rooms, 4 bedrooms, 2 1/2 baths and a 2 car garage.
Make this your home on one of the newest streets in Burlington, MA, and enjoy all that Burlington has to offer.
2 Rosario Way
Kitchen Images


For more information on 2 Rosario Way, please click here: 2 Rosario Way, Burlington, MA 01803.
4 Rosario Way
Kitchen Layout

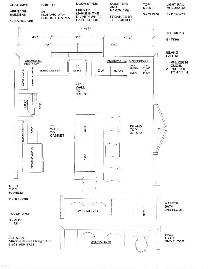
6 Rosario Way
Kitchen Layout

For more information on 6 Rosario way, please click here: 6 Rosario Way, Burlington, MA 01803.
To contact us, click here: Contact FICO.
For more information on Rosario Way, please click here: Rosario Way – New Development – Burlington, MA.
Leave a Reply