To Be Built by Heritage Home Builders, Quality Craftsmanship will Make this a Gorgeous Home!
Part of a brand new 3 lot subdivision sitting on a new beautifully landscaped cul-de-sac, offering 8 rooms, 4 bedrooms, 2 1/2 baths, a 2 car garage and 4 off-street parking spaces.
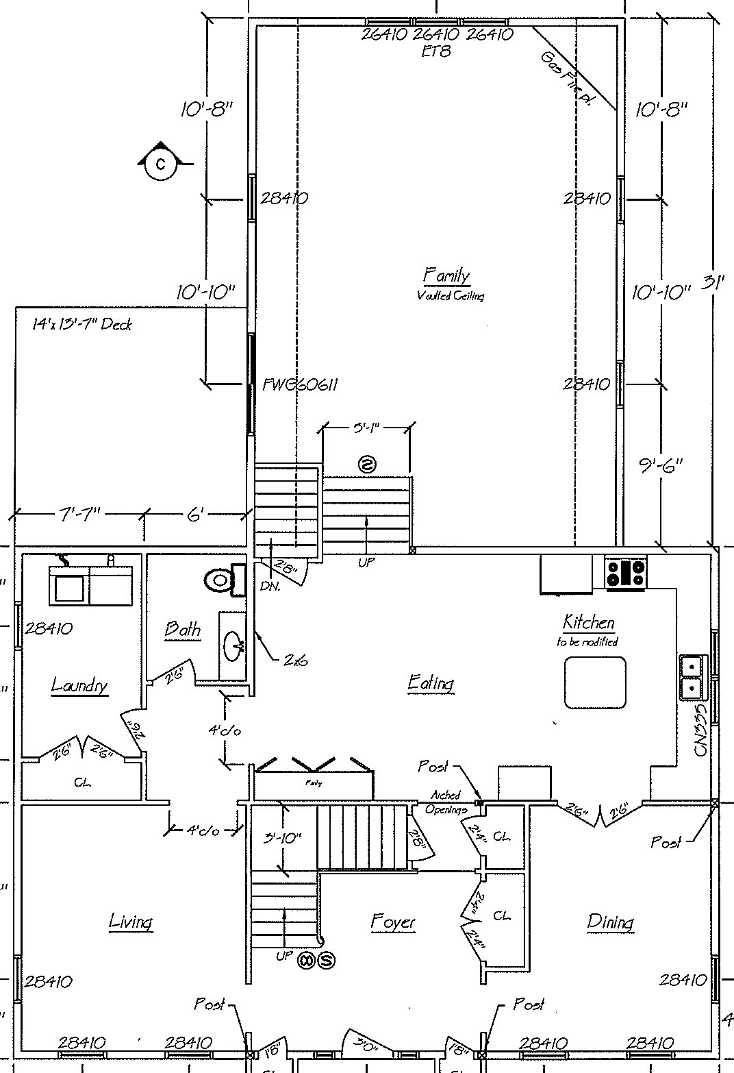
1st floor features formal living room with crown molding and chair rail, dining room with crown molding, chair rail, and wainscoting, spacious kitchen with granite, stainless steel appliances and under cabinet lighting, grand size family room with gas fireplace and cathedral ceilings overlooking private backyard.
2nd floor featuring master bedroom with bath, 3 additional bedrooms. Hardwood throughout. 4 heating/cooling zones and laundry room. Easy access to highways.
Make this your home on one of the newest streets in Burlington and enjoy all that Burlington has to offer!
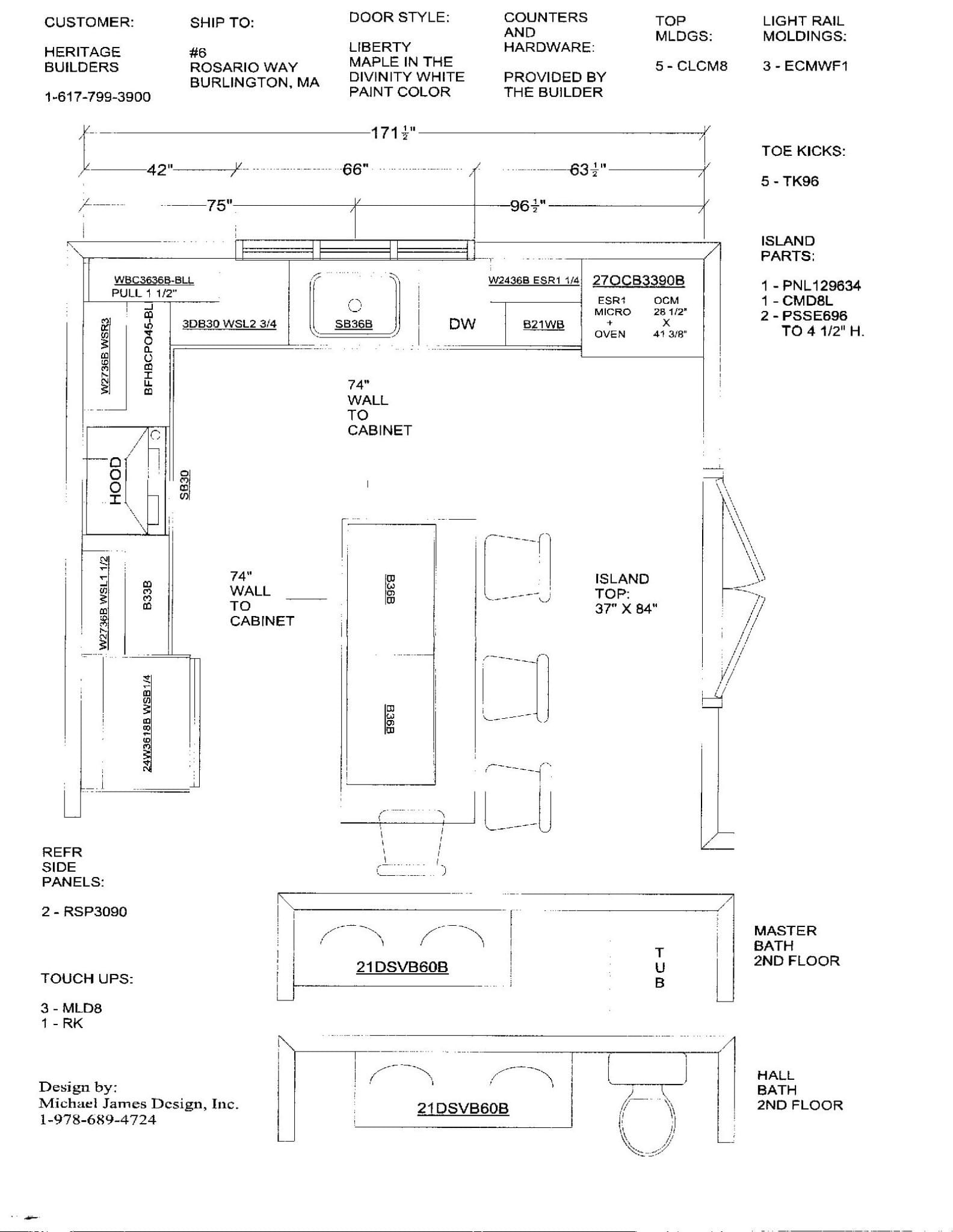
Download the 6 Rosario Way Building Specifications.
6 Rosario Way Details
Address: 6 Rosario Way
City: Burlington
State: MA
ZIP: 01803
Square Feet: 2500
Bedrooms: 8
Bathrooms: 4
Basement: Yes
Additional Features:
2 Car Garage, Central Air, City Sewer, City Water, Clapboard Exterior, Gas Heat, Hardwood Floor, Poured Concrete Foundation, Residential, Shingle Exterior, Single Family
6 Rosario Way Rooms
| Rooms | Size | Floor |
|---|---|---|
| Living Room | 15x13 | 1 |
| Dining Room | 15x12 | 1 |
| Kitchen | 16x14 | 1 |
| Family Room | 20x13 | 1 |
| Master Bedroom | 22x14 | 2 |
| Bedroom #2 | 14x14 | 2 |
| Bedroom #3 | 13x13 | 2 |
| Bedroom #4 | 13x12 | 2 |
| Master Bathroom | 2 | |
| Bathroom #2 | 1/2 bath | 1 |
| Bathroom #3 | 2 | |
| Laundry | 2 |
6 Rosario Way Photos
6 Rosario Way Floor Plans
Download the 6 Rosario Way Detailed Floor Plans.
6 Rosario Way Map




Leave a Reply