
TO BE BUILT! 485 Washington Street Woburn MA 01801, is a beautiful 8 Room, 4 Bedroom, 2 1/2 Bath, Colonial. Very close to the Reading line.
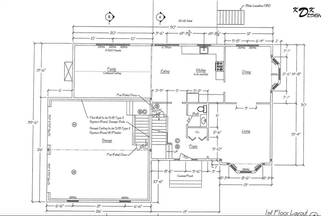
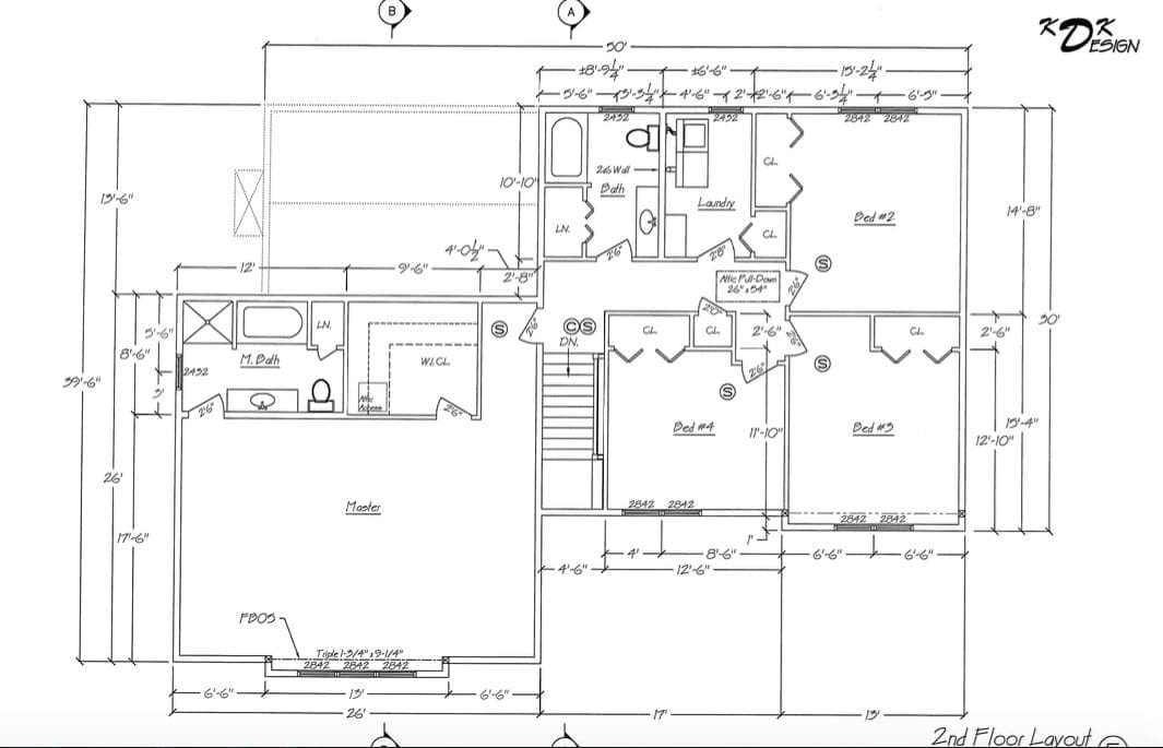
First floor features formal living room with crown molding and chair rail. A dining room with crown molding, chair rail, and wainscoting. Beautiful kitchen with granite, stainless steel appliances, center island and under cabinet lighting. Lastly, a family room with gas fireplace and cathedral ceilings,. Hardwood throughout. Second floor features a luxurious master bedroom with bath and walk-in closet. Also, three additional bedrooms, a full bathroom and laundry room . Conveniently located to major highways, shopping and restaurants. Still time to custom build! Come make this your dream home!
Please download: 485 Washington st- Information Packet
485 Washington Street Woburn MA 01801 Details
Address: 485 Washington Street
City: Woburn
State: MA
ZIP: 01801
Square Feet: 2,758
Bedrooms: 4
Bathrooms: 2.5
Basement: yes
Additional Features:
2 Car Garage, Asphalt shingle roof, cable hookups, cathedral ceilings, central a.c, Central Vacuum, deck, double vanity sink, fireplace, Forced Air Heat, granite countertops, Hardwood Floors, Insulated Windows, Natural Gas, Poured Concrete Foundation, Security System, stainless steel appliances, Vinyl Exterior, wainscoting, walk-in closet
485 Washington Street Rooms
| Room | Size | Floor |
|---|---|---|
| Dining Room | 15x12 | 1 |
| Living Room | 15x13 | 1 |
| Kitchen | 18x15 | 1 |
| Family Room | 20x14 | 1 |
| Foyer | 1 | |
| Master Bedroom | 28x18 | 2 |
| Master Bathroom | 2 | |
| Bedroom #2 | 15x13 | 2 |
| Bedroom#3 | 14x13 | 2 |
| Bedroom#4 | 12x12 | 2 |
| Bathroom#2 | 2 | |
| Bathroom#3 | half bath | 1 |
| Laundry | 2 |







Leave a Reply