
First of Two, TO BE BUILT! 2 Drummer Lane Wakefield MA 01880 will be a gorgeous 4 Bedroom, 2 1/2 Bath, Colonial sitting on a dead end street. Enjoy the luxury living and entertaining style that a brand new home has to offer.
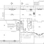
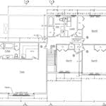
The first floor features a formal living room with crown molding and chair rail. A dining room with crown molding, chair rail, and wainscoting. Beautiful kitchen with granite, stainless steel appliances, center island and under cabinet lighting. Lastly, a family room with gas fireplace and cathedral ceilings and recessed lighting. Hardwood throughout. Second floor features a luxurious master bedroom with bath walk-in shower, separate tub and walk-in closet. Basement plumbed for a 4th BA. Also, three additional bedrooms, a full bathroom and laundry room. Local and Quality Builder! Still time to custom build. Conveniently located to major highways and close to the new Market Street shopping center and restaurants.
Please Download: 2 Drummer Lane Wakefield MA 01880- information packet
2 Drummer Lane Wakefield MA 01880 Details
Address: 2 Drummer Lane Wakefield MA 01880
City: Wakefield
State: MA
ZIP: 01880
Square Feet: 2,758
Bedrooms: 4
Bathrooms: 2.5
Basement: yes
Additional Features:
2 Car Garage, Asphalt shingle roof, cable hookups, cathedral ceilings, central a.c, Central Vacuum, deck, double vanity sink, fireplace, forced hot air heat, granite countertops, Hardwood Floors, Insulated Windows, Natural Gas, Poured Concrete Foundation, Security System, stainless steel appliances, Vinyl Exterior, wainscoting, walk-in closet
2 Drummer Lane Rooms
| Room | Size | Floor |
|---|---|---|
| Dining Room | 15x12 | 1 |
| Living Room | 15x13 | 1 |
| Kitchen | 18x15 | 1 |
| Family Room | 20x14 | 1 |
| Foyer | 1 | |
| Master Bedroom | 28x18 | 2 |
| Master Bathroom | 2 | |
| Bedroom #2 | 15x13 | 2 |
| Bedroom#3 | 14x13 | 2 |
| Bedroom#4 | 12x12 | 2 |
| Bathroom#2 | 2 | |
| Bathroom#3 | half bath | 1 |
| Laundry | 2 |
2 Drummer Lane Floor And Exterior Plans







Leave a Reply